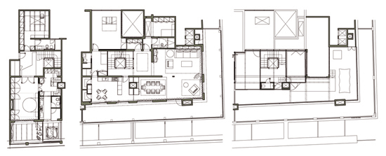
Reforma de un triplex en pleno corazón de Barcelona, en la que la planta acceso y más baja, era la más pequeña y en la originariamente estaba las partes comunes de la casa, la cocina y el salón comedor. La necesidad de no tener que hacer muchas habitaciones, aunque el piso tenga trescientos metros cuadrados, nos permitió pasar las habitaciones a la planta acceso, y dejar la planta mayor para los espacios comunes, todos comunicados mediante puertas correderas y aprovechando las terrazas, realizadas al miso nivel. Los núcleos de comunicación se realizaron completamente nuevos, integrando en el ojo de la escalera un ascensor panorámico. En la terraza superior, el tercer nivel, se incluyó una pequeña piscina, cubierta con un acristalamiento retráctil, que permitía aislarse en invierno, y dejarla completamente abierta en verano. En colaboración con Octavio Mestre Arquitecto







